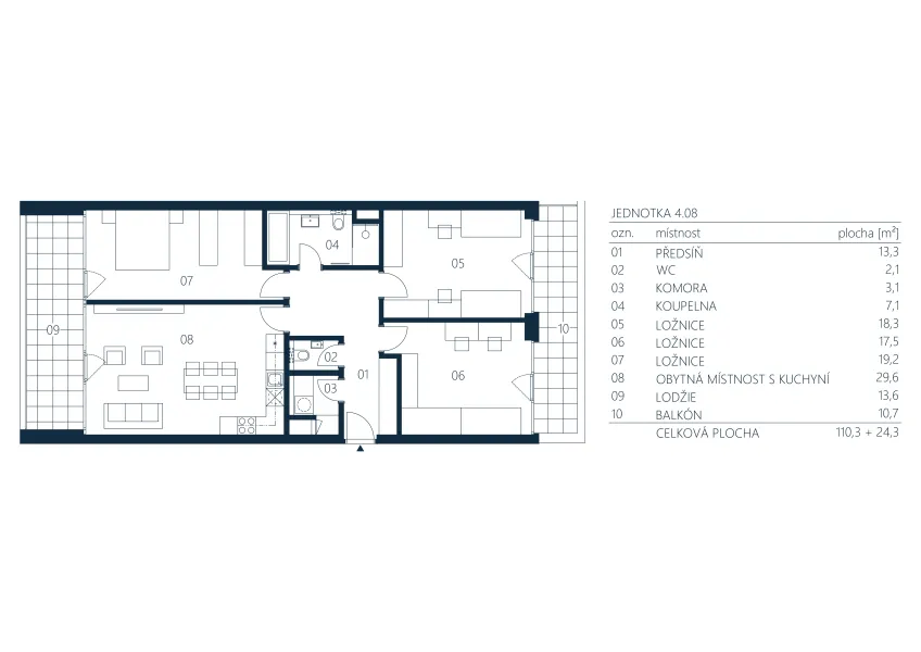
Byt 4.08
4+kk
ozn.
místnost
plocha (m2)
01
předsíň
13,3
02
wc
2,1
03
komora
3,1
04
koupelna
7,1
05
ložnice
18,3
06
ložnice
17,5
07
ložnice
19,2
08
obytná místnost s kuchyní
29,6
09
lodžie
13,6
10
balkón
10,7
Cena
Na dotaz
Stav:
K dispozici












