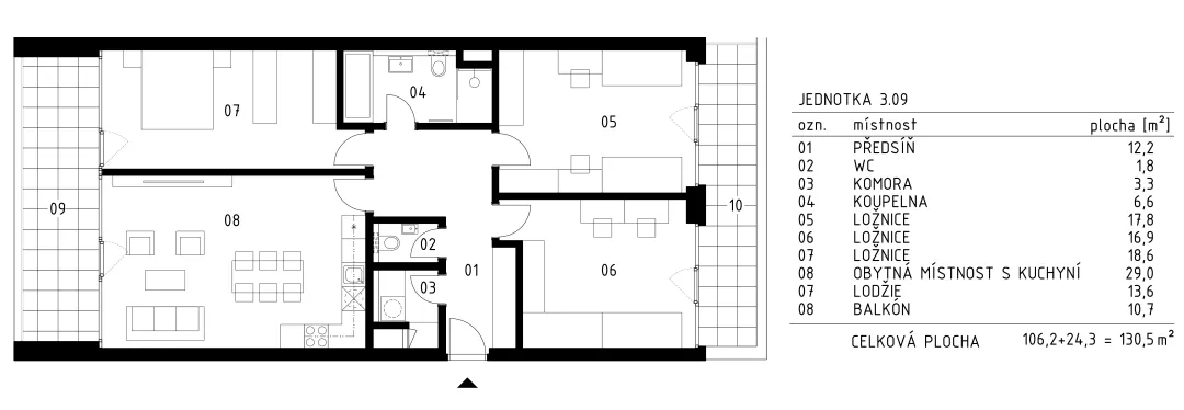
Byt 3.09
4+kk
ozn.
místnost
plocha (m2)
01
předsíň
13,3
02
wc
2,1
03
komora
3,1
04
koupelna
7,1
05
ložnice
18,3
06
ložnice
17,5
07
ložnice
19,2
08
obytná místnost s kuchyní
29,7
09
lodžie
14,0
10
balkón
10,8
Preis
Na dotaz
Stav:
K dispozici








